
Bytový dům 4
Pětipodlažní podsklepený objekt
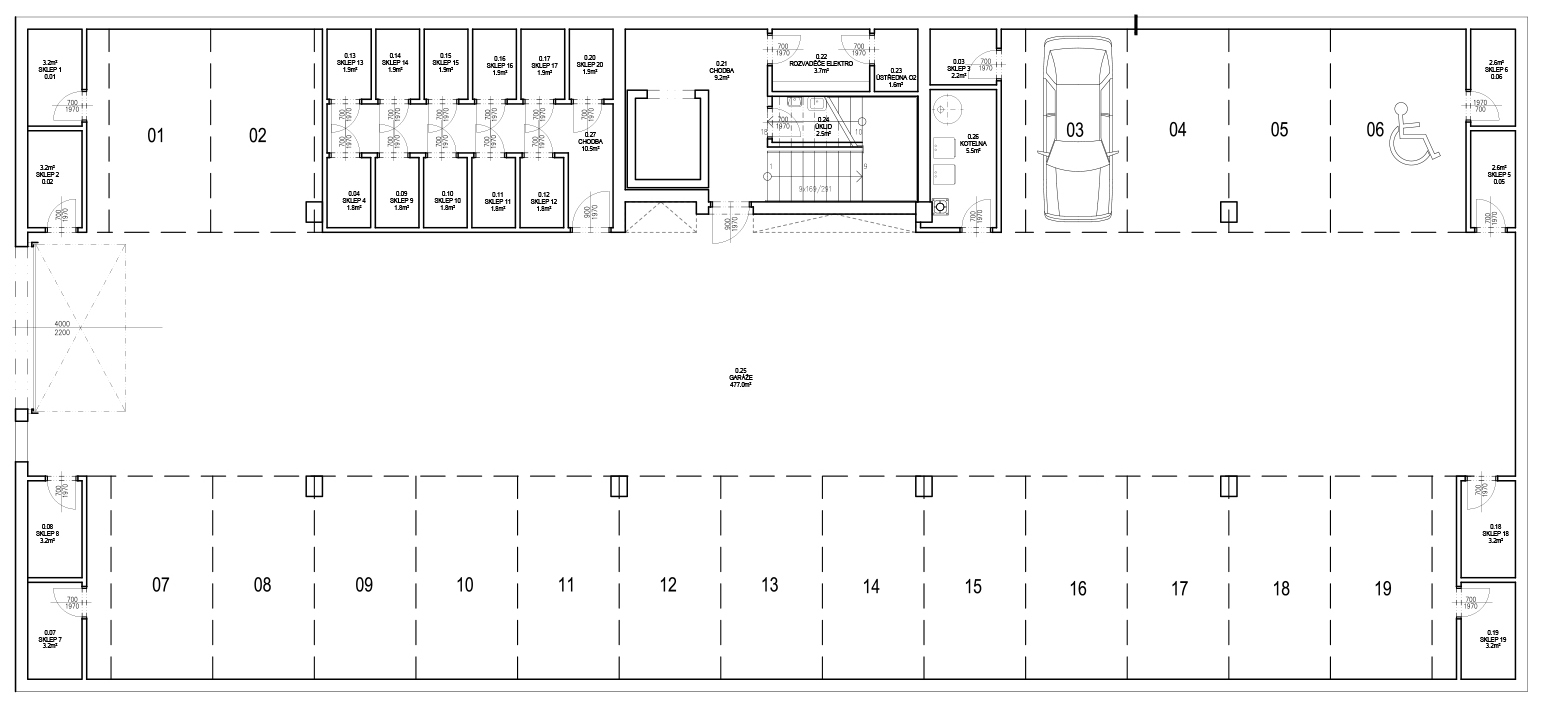
V 1. PP je navrženo 19 garážových stání. Současně jsou zde prostory pro umístění el. rozvaděčů a slaboproudých rozvodů, úklidová místnost, kotelna a sklepy k jednotlivým bytům. Spojení s vyššími podlažími je zajištěno schodištěm a výtahem.
V 1. NP – 4. NP je navrženo 20 bytových jednotek podlahové plochy 47,0 m² – 85,3 m² s dispozičním uspořádáním 2+kk a 3+kk. Součástí bytů v 1. NP jsou terasy, ve 2. NP – 4. NP jsou lodžie a balkony.
Zahájení výstavby: 01/2022
Dokončení výstavby: 08/2023
Kupní cena bytové jednotky zahrnuje
- cenu bytové jednotky při zachování standardního vybavení, jehož součástí není pouze dodávka kuchyňské linky, vestavěného nábytku a svítidel v obytných místnostech.
- cenu příslušenství (sklep, lodžie, balkon popř. terasa)
- cenu spoluvlastnického podílu na pozemku zastavěném bytovým domem a pozemku náležejícímu k bytovému domu, na společných částech domu a veškerých inženýrských sítích a rozvodech, resp. přípojkách, které budou v podílovém spoluvlastnictví vlastníků jednotek
Cena bytové jednotky je stanovena včetně platné DPH.
K ceně bytové jednotky bude dále připočítána cena garážového stání v případě,
že bytová jednotka má garážové stání přiděleno (viz půdorys bytové jednotky).
Kromě vnitřních garážových stání budou na venkovní komunikaci přiléhající
k bytovému domu veřejná parkovací stání, která budou v majetku města Plzně.
Podzemní podlaží

1. nadzemní podlaží

Číslo | Typ | Podlahová plocha | Balkón / Lodžie / Terasa | Sklep | Cena bytu s DPH | Cena garážového stání s DPH | Stav | PDF ke stažení |
---|
2. nadzemní podlaží

Číslo | Typ | Podlahová plocha | Balkón / Lodžie / Terasa | Sklep | Cena bytu s DPH | Cena garážového stání s DPH | Stav | PDF ke stažení |
---|
3. nadzemní podlaží

Číslo | Typ | Podlahová plocha | Balkón / Lodžie / Terasa | Sklep | Cena bytu s DPH | Cena garážového stání s DPH | Stav | PDF ke stažení |
---|
4. nadzemní podlaží

Číslo | Typ | Podlahová plocha | Balkón / Lodžie / Terasa | Sklep | Cena bytu s DPH | Cena garážového stání s DPH | Stav | PDF ke stažení |
---|